- Woonoppervlakte
- Circa 163 m²
- Perceeloppervlakte
- Circa 287 m²
- Bouwjaar
- Gebouwd in 2001
- Aantal kamers
- 4 kamers (3 slaapkamers)
**For translation - switch to the English Funda version **
Unieke, uitgebouwde hoek/kopwoning met drie slaapkamers, garage en grote tuin
Aan een fraaie singel vindt u deze unieke woning, gelegen aan de kop van een huizenrij en op slechts vijf minuten lopen van de Nieuwe Driemanspolder. De woning beschikt over een zeer grote woonkamer annex open keuken, drie slaapkamers, een garage en een grote tuin.
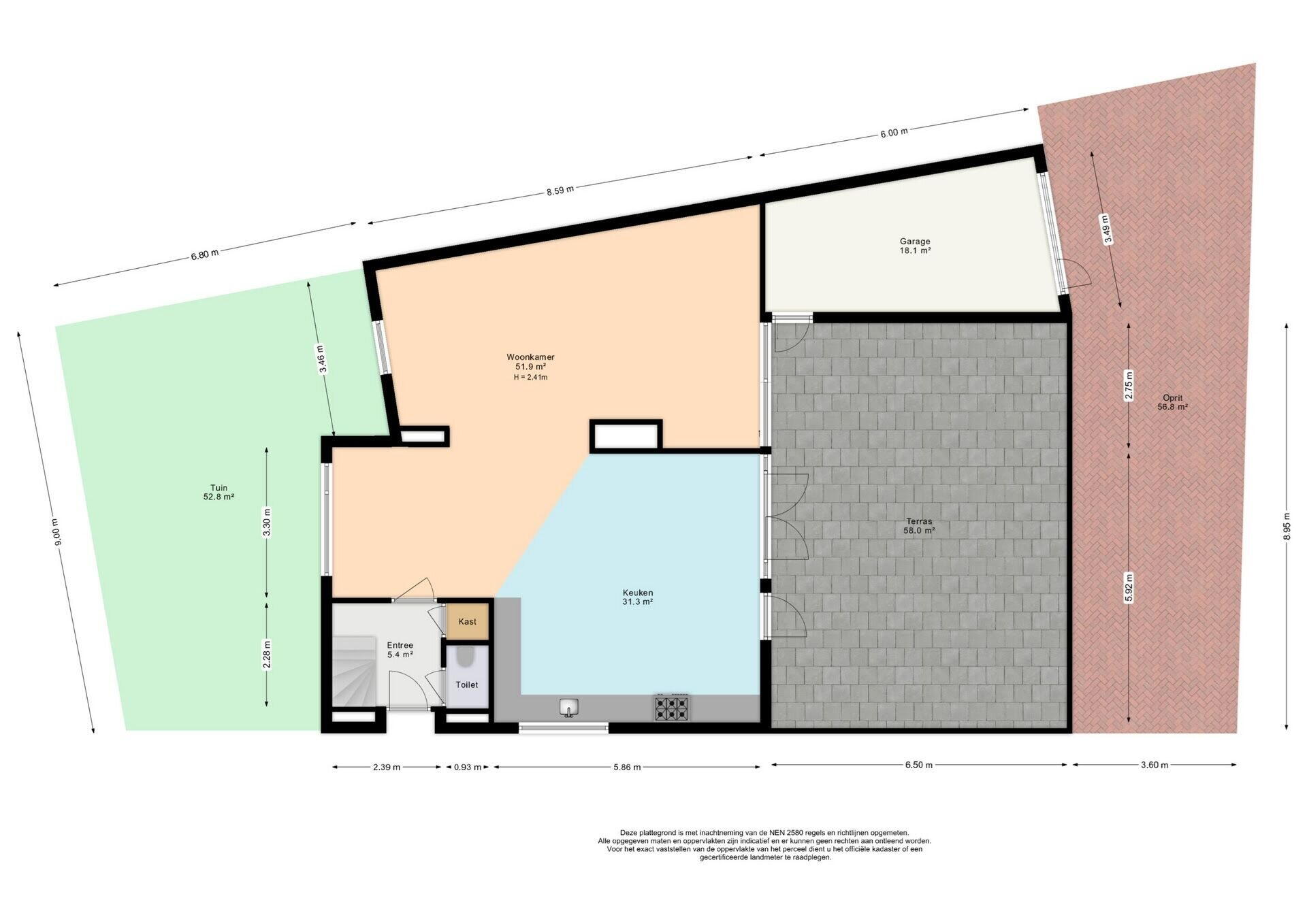
Zeer grote woonkamer en open keuken
De voordeur is aan de singelzijde. Bij binnenkomst wordt u verwelkomd in een lichte hal, die is voorzien van een speels betegelde vloer. De glazen deur voor u biedt toegang tot het paradepaardje van deze woning: de uitgebouwde, bijzonder ruime woonkamer die verbonden is met de open keuken en samen maar een oppervlakte hebben van maar liefst 85 m² (!). Wat een heerlijke living!
Een slim geplaatste korte wand zorgt ervoor dat er verschillende deelplekken ontstaan, terwijl de ruimtebeleving optimaal blijft. Dit wordt nog eens versterkt door de grote raampartijen – inclusief dubbele openslaande deuren! – die het licht van drie zijden laten binnenkomen.
De open keuken is zo opgesteld dat u ook hier maximaal van de ruimte geniet. In de hoogglans antracietkleurige laden en kasten beschikt u over volop bergruimte en op het granieten werkblad kunt u moeiteloos een grote maaltijd bereiden zonder dat u hoeft te schuiven met etenswaren, borden of schalen. De keuken is uitgerust met Siemens inbouwapparatuur en een SMEG-oven.
De antracietkleurige tegelvloer is voorzien van vloerverwarming.
Verdiepingen: drie slaapkamers en een badkamer
Via de houten trap bereikt u de eerste verdieping. Hier vindt u allereerst de hoofdslaapkamer. Een fijne, grote ruimte met lichtinval van twee kanten. Naast deze slaapkamer is de opvallend grote badkamer. De inrichting is basic, met een open douche, ligbad, een wastafel met ronde spiegel en het tweede, zwevende toilet.
De volgende trap leidt naar de tweede verdieping waar u nog eens twee lichte slaapkamers aantreft. Zoals u ziet, biedt de overloop een prima mogelijkheid om een werk- of studeerplek te creëren. De witgoedopstelling, cv-ketel , MV-box en de omvormer voor uw (24!) zonnepanelen zijn geplaatst in een aparte ruimte, die u bereikt via de overloop.
Goed om te weten: alle slaapkamerramen zijn voorzien van horren en airconditioning (waarvan er een helaas defect is). Op de vloeren ligt laminaat.
Grote tuin, garage met laadpaal
Heeft u de binnenruimte goed in u opgenomen? Dan gaan we nu naar buiten. Hier ervaart u de grootte van het perceel heel goed. Via de openslaande deuren kunt u zowel vanuit de woonkamer als de keuken het terras betreden. Net als binnen gaat het ook hier om één grote ruimte, met verschillende zitplekken. De muur rondom zorgt voor optimale privacy en de lange border met planten en struiken brengt sfeer. Ook aan de andere zijde van de woning is nog een groot terras.
De garage is tegen het huis aangebouwd en beschikt over een elektrische deur en een laadpaal. Naast de garage is nog een deur zodat u ook rechtstreeks vanaf het terras naar de straat kunt.
Niet onbelangrijk, ook de lange oprit behoort tot de woning.
Gunstige ligging
De ligging van deze woning is zeer gunstig. Binnen vijf minuten fietst u naar het winkelcentrum en het openbaar vervoer. Speelvoorzieningen zijn er op loopafstand; scholen (waaronder de British school) bereikt u in enkele fietsminuten. Met de auto bent u in enkele minuten bij de uitvalswegen richting A4/A12/A13. En groenliefhebbers vinden verschillende natuurparken op korte afstand, waaronder de Driemanspolder (op steenworp), Westerpark en het Balijbos.
* Uitgebouwde kopwoning, gelegen aan de singel
* Woonoppervlak woning: 162,6 m², inhoud 611 m³, gemeten volgens NEN2580
* Perceel 287 m², volledig eigendom
* Entree aan singelzijde, toilet
* Zeer grote woonkamer met openslaande deuren en lichtinval van drie zijden
* Grote open keuken, uitgerust met veel werk- en bergruimte, Siemens inbouwapparatuur, SMEG-oven; openslaande deuren naar de tuin
* Grote hoofdslaapkamer op de eerste verdieping
* Ruime badkamer met open douche, ligbad, wastafel met spiegel en zwevend tweede toilet
* Tweede verdieping met twee lichte slaapkamers
* Alle slaapkamerramen voorzien van horren en airconditioning (1 defect)
* Aparte ruimte voor witgoedopstelling, cv-ketel, mv-box en omvormer zonnepanelen
* Zonnepanelen, 24 stuks van 370 Wp, merk Ulica Solar
* Waterfilter aanwezig
* Grote, geheel betegelde achtertuin met groene border. Voorzijde, groot groen omlijnt terras
* Garage met elektrische deur en laadpaal; daarnaast nog een aparte deur (achterom)
* Parkeergelegenheid aan singelzijde
* Centraal gelegen nabij alle faciliteiten en openbaar vervoer
* Opgang naar uitvalswegen richting A4/A12/A13 in enkele autominuten
* Diverse parken, waaronder de Nieuwe Driemanspolder, op loop- of fietsafstand
* Oplevering in overleg
Is uw interesse gewekt?
Wacht niet te lang en bel Makelaarscentrum Leidschenveen om een afspraak te maken.
Deze informatie is met zorg samengesteld, aan de juistheid kunnen echter geen rechten worden ontleend. Alle opgegeven maten en oppervlakten zijn indicatief. De woning is gemeten met gebruikmaking van de Meetinstructie, die is gebaseerd op de normen zoals vastgelegd in NEN 2580. De algemene verkoopvoorwaarden staan vermeld op onze website, wij werken conform de Algemene Consumentenvoorwaarden van VBO Makelaar. Heeft u vragen over dit object of over onze dienstverlening, neemt u dan gerust contact met ons op.
Kortom, bel ons voor het maken van een afspraak of schakel direct uw eigen VBO/NVM aankoopmakelaar in. Uw aankoopmakelaar komt op voor uw belang en bespaart u veel tijd, geld en zorgen. Bekijk alle kenmerken
Overdracht
- Vraagprijs
- € 695.000 k.k.
- Status
- Verkocht
Bouw
- Object type
- Eengezinswoning, hoekwoning
- Soort bouw
- Bestaande bouw
- Bouwjaar
- 2001
- Soort dak
- Plat dak bedekt met bitumineuze dakbedekking
Oppervlakte en inhoud
- Woonoppervlakte
- 163 m²
- Perceeloppervlakte
- 287 m²
- Inhoud
- 610 m³
- Externe bergruimte
- 19 m²
Indeling
- Aantal kamers
- 4 kamers (3 slaapkamers)
- Aantal badkamers
- 1 badkamer
- Badkamervoorzieningen
- Douche, ligbad, en wastafel
- Aantal woonlagen
- 3 woonlagen
- Voorzieningen
- Airconditioning, glasvezelkabel, mechanische ventilatie, en zonnepanelen
Energie
- Energielabel
- A
- Energielabel registratie
- 10-07-2024
- Isolatie
- Hr-glas, muurisolatie en volledig geïsoleerd
- Verwarming
- Cv-ketel en gedeeltelijke vloerverwarming
- Warm water
- Cv-ketel
- Cv ketel
- Vailliant hr solide plus cw5 (gas gestookt combiketel uit 2011, eigendom)
Buitenruimte
- Ligging
- Aan rustige weg, aan water en in woonwijk
- Tuin
- Achtertuin en voortuin
- Afmetingen achtertuin
- 59 m² (6,60 meter diep en 8,95 meter breed)
- ligging tuin
- Gelegen op het zuidoosten bereikbaar via achterom
Garage
- Soort garage
- Aangebouwde stenen garage
- Capaciteit
- 1 auto
- Voorzieningen
- Elektrische deur en elektra
- Isolatie
- Muurisolatie
Parkeergelegenheid
- Soort parkeergelegenheid
- Op eigen terrein en openbaar parkeren
Energieverbruik in Den Haag
Energielabel deze woning
Energielabel A
Publicatie energielabel: 10-07-2024
Stroomverbruik per jaar
(Gemiddelde hoekwoning in Den Haag)
Gasverbruik per jaar
(Gemiddelde hoekwoning in Den Haag)
* Cijfers zijn afkomstig van het CBS en bedoeld als indicatie en kunnen verschillen voor deze woning
Indicatie hypotheeklasten
Eigen inleg:
Spaargeld / overwaarde
Rente:
Laagste 10-jaars rente
Laagste 10-jaars rente
2,75% - Centraal Beheer Groen... - NHG
3,05% - Centraal Beheer Groen... - 80%
Laagste 20-jaars rente
3,23% - Argenta Groen Hypothee... - NHG
3,44% - Argenta Groen Hypothee... - 80%
Laagste 30-jaars rente
3,4% - Argenta Groen Hypotheek... - NHG
3,61% - Argenta Groen Hypothee... - 80%
Hypotheek:
Bruto maandlasten: € 0 p/m
Netto maandlasten: € 0 p/m
Hoe berekenen we dit?
Het rentepercentage is gebaseerd op de laagste 10-jaars vaste rente voor één hypotheekdeel. De vermelde rente (3.05% zonder NHG) is gecontroleerd op 16-10-2025. Deze berekening is gebaseerd op een annuïteitenhypotheek die volledig wordt afgelost, waarbij de maandlasten gedurende de gehele looptijd gelijk blijven. De werkelijke rente en netto maandlasten kunnen variëren, afhankelijk van uw persoonlijke situatie en de hypotheekverstrekker. Raadpleeg een financieel adviseur voor een nauwkeurige berekening en advies. Aan deze berekening kunnen geen rechten worden ontleend; het dient enkel als indicatie.
Documentatie
Kadastrale kaart
Leefomgeving
Plattegronden PDF
Bms45-akte-van-levering
Bms45-energielabel-a
Bms45-gem-belastingen
Lijstvanzaken-4125
Meetrapport-bootmansingel-45-den-haag
Vragenlijstb-v2
WOZ waarderapport
BAG uittreksel
Brochure
Bezoek onze website
Bezichtiging
Bod uitbrengen
Waardebepaling
Zoekopdracht
Alles downloaden
Zonnegrenzen bekijken
Op de kaart
Inwoners in Den Haag
Cijfers voor postcodegebied 2492
- Totaal aantal inwoners
- 12525 inwoners
- Mannen
- 50%
- Vrouwen
- 50%
Inwoners in Den Haag
Cijfers voor postcodegebied 2492
- tot 15 jaar
- 19%
- 15 tot 25 jaar
- 14%
- 25 tot 35 jaar
- 20%
- 45 tot 65 jaar
- 34%
- 65 en ouder
- 12%
Huishoudens in Den Haag
Cijfers voor postcodegebied 2492
- Eenpersoons zonder kinderen
- 20%
- Meerpersoons zonder kinderen
- 26%
- Huishoudens zonder kinderen
- 46%
Huishoudens in Den Haag
Cijfers voor postcodegebied 2492
- Huishoudens met één kind
- 9%
- Huishoudens met meerdere kinderen
- 44%
- Huishoudens met kinderen
- 53%
Woningen in Den Haag
Cijfers voor postcodegebied 2492
- Woningen voor 1945
- 1%
- Woningen tussen 1945 en 1965
- 1%
- Woningen tussen 1965 en 1975
- 1%
- Woningen tussen 1975 en 1985
- 1%
- Woningen tussen 1985 en 1995
- 1%
Woningen in Den Haag
Cijfers voor postcodegebied 2492
- Woningen tussen 1995 en 2005
- 81%
- Woningen tussen 2005 en 2015
- 18%
- Woningen na 2015
- 1%
- Huurwoningen
- 30%
- Koopwoningen
- 70%
Overige in Den Haag
Cijfers voor postcodegebied 2492
- Gemiddelde WOZ waarde
- € 351.000,-
- Personen onder de 65 met uitkering
- Niet beschikbaar
Overige in Den Haag
Cijfers voor postcodegebied 2492
- Adressen per km²
- 1465
- Stedelijkheid (schaal 1 op 5)
- 60%
Korte feiten over Den Haag
Den Haag , ook wel 's-Gravenhage genoemd, is de hoofdstad van de provincie Zuid-Holland en met 562.446 inwoners (31 januari 2023, bron: CBS) de op twee na grootste gemeente van Nederland, na Amsterdam en Rotterdam. Alhoewel Den Haag niet de hoofdstad van Nederland is, dat is Amsterdam, is het wel de residentie (regeringszetel) en fungeert het in veel opzichten als hoofdstad.
Makelaarscentrum Leidschenveen
Indien u vragen heeft of u wilt een bezichtiging inplannen, dan kunt u gebruik maken van het formulier hiernaast. Er zal daarna op korte termijn contact met u worden opgenomen.
Koraalrood 153 (bezoekadres)
2718 SB, Zoetermeer
070 326 5476 robverhoeven@makelaarscentrum.nl www.makelaarscentrum-leidschenveen.nlContact opnemen
Makelaarscentrum Leidschenveen
"Plaats het maar op mijn bord," zegt Rob Verhoeven, een makelaar die al jarenlang in Leidschenveen woont en werkt. Hij heeft zich gespecialiseerd in deze aantrekkelijke wijk van Den Haag en is een expert in het begeleiden van zowel aankoop- als verkoopprocessen. "Ik heb de ontwikkeling van deze wijk van dichtbij meegemaakt. Ik ken sommige delen zelfs beter dan mijn eigen straat," vertelt hij met een glimlach.
Rob's grondige kennis van Leidschenveen heeft al veel mensen geholpen hun ideale woning te vinden of hun huis sneller dan verwacht te verkopen, vaak tegen prijzen die de verwachtingen overtroffen. Wat is zijn geheim? Rob zet altijd dat extra stapje voor zijn klanten. "U kunt mij echt alles vragen over het kopen of verkopen van een huis. En natuurlijk kunt u uw woning aan mij toevertrouwen als u dat overweegt 😊."
Nieuwste reviews
-
Patricia van Delft
We zijn erg tevreden over Rob. De communicatie was duidelijk en prettig, en we voelden ons gedurende het hele verkoopproces goed begeleid. H...
-
Marielle EH
Rob van Makelaarscentrum Leidschenveen is een prima makelaar met kennis van de markt. Hij werkt snel, vakkundig en duidelijk. Absoluut een a...
-
helena stikkelman
Rob is een fijne makelaar, denkt met je mee, weet hoe de markt in elkaar steekt. Hij deelt elke stap die er gemaakt wordt en is goed bereikb...